

The Glasshouse COOLHOUSE features a glass living area has no walls to restrict views and sunshine. The master bedroom has separation from the other bedrooms. Two further bedrooms and bathroom plus a garage complete this home. It’s the ultimate indoor-outdoor getaway.
Optional Extras Available now
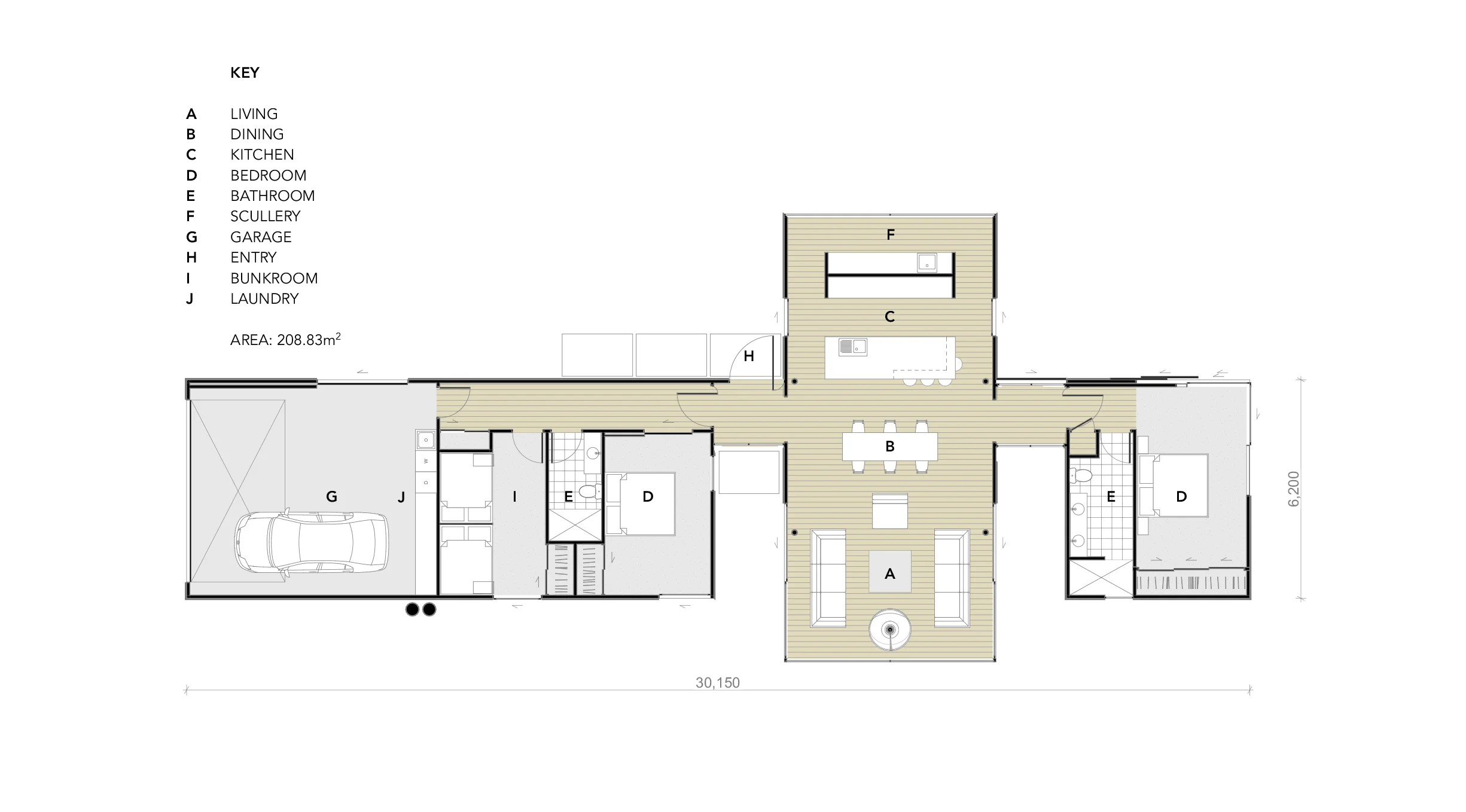
FLOOR PLAN

Price estimate, starts from $1,350,000 (excluding GST, Extras & Siteworks)
Compact with no wasted space, the ideal solution for a granny flat or secondary dwelling. Features full height sliding doors the disappear into cavities opening the living and bedroom to seamless access to outdoor spaces.
The Studio COOLHOUSE is a compact 2 level dwelling which is ideal for a small footprint site. It is suited for mixed use, live and workspace scenarios.